Mieszkanie na sprzedaż Bydgoszcz

2 pokoje
38.48 m²
13 550,36 zł/m2
1 piętro
ODOM-MS-212
Oblicz ratę kredytu

521 418 zł

Mieszkanie na sprzedaż
Nowa oferta

Szczegóły oferty

Symbol oferty ODOM-MS-212
Powierzchnia 38,48 m²
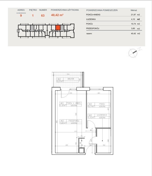
Powierzchnia użytkowa [m2] 40,42 m²
Powierzchnia balkonów/tarasów 5,27 m²
Liczba pokoi 2
Liczba sypialni 3
Rodzaj budynku apartamentowiec
Technologia budowlana beton, cegła
Standard
Piętro 1
Liczba pięter w budynku 4
Stan lokalu deweloperski
Okna PCV 3 szyby, ciepły montaż
Instalacje nowe
Balkon jest
Liczba balkonów 1
Rok budowy 2022
Plac zabaw tak
Widok na osiedle
Gaz brak
Woda ciepła - miejska
Dojazd asfalt
Otoczenie osiedle
Ogrzewanie centralne
Odległość do komunikacji publicznej [m] 100 m
Odl. do sklepu [m] 100 m
Odl. do szkoły [m] 100 m
Winda tak
Liczba wind 2
Usytuowanie jednostronne
Przystosowania dla niepełnosprawnych tak
Pomieszczenia
Typ kuchni aneks kuchenny połączony z jadalnią i salonem
Rodzaj kuchni aneks kuchenny - połączony z salonem
Powierzchnia kuchni 21,97 m2
Typ łazienki razem z wc
Liczba łazienek 1
Liczba przedpokoi 1
Powierzchnia przedpokoi 3,60 m2
Julia Zaorska

Julia Zaorska

Doradca ds. nieruchomości

Napisz wiadomość 27 Ofert

Opis nieruchomości

Twój adres w rytmie symfonii – prestiż, harmonia, styl
Kameralne osiedle przy ul. Chodkiewicza 9 to wyjątkowa inwestycja, w ramach której powstało 211 starannie zaprojektowanych lokali mieszkalnych od kompaktowych mieszkań dla singli, po przestronne apartamenty dla rodzin. To miejsce, które łączy nowoczesną architekturę, wysoki standard wykonania i komfort codziennego życia.
Na mieszkańców czekają funkcjonalne układy pomieszczeń, przemyślane rozwiązania technologiczne oraz liczne udogodnienia, które podnoszą jakość życia i tworzą wyjątkową, przyjazną przestrzeń do zamieszkania.


Układ mieszkania
Powierzchnia użytkowa o metrażu 40,42 m² obejmuje:
- Pokój z aneksem kuchennym
- Salon
- Łazienka
- Przedpokój 
- Balkon

Mieszkanie doskonale sprawdzi się dla singla, pary lub jako bezpieczna inwestycja kapitału w nieruchomość pod wynajem.

Dodatkowo możesz dokupić: 

- Miejsce postojowe w hali garażowejod 54 000 zł
- Miejsce postojowe na terenie zamkniętym  29tys zł 
- Komórkę lokatorską  5 500 zł/m² 

*** Kupujący nie płaci prowizji ani podatku PCC 2%.*** 

Na terenie inwestycji znajdziesz:

- miejsce do ładowania samochodów elektrycznych
- halę garażową i komórki lokatorskie

- szybką i cichobieżną windę
- monitoring i ogrodzony teren
- zagospodarowaną, zieloną przestrzeń wokół budynku
- wysoki standard części wspólnych


Lokalizacja, która sprzyja życiu 

Osiedle Symfonia powstaje w wyjątkowym miejscu – w samym sercu Bydgoszczy, w otoczeniu zieleni i miejskich udogodnień. W pobliżu znajdują się parki, sklepy, restauracje, szkoły i przedszkola, a także kampus Akademii Muzycznej, który nadaje okolicy niepowtarzalny, artystyczny klimat.

Dzięki doskonałej komunikacji z centrum miasta, do najważniejszych punktów Bydgoszczy dotrzesz w zaledwie kilka minut.
To idealne miejsce dla tych, którzy cenią sobie wygodę miejskiego życia, a jednocześnie pragną spokoju i harmonii w codziennym otoczeniu.

 

** Dostępna jest opcja wykończenia pod klucz, przy czym koszt ustalany jest indywidualnie i zależy od wybranych materiałów. **


Z przyjemnością przeprowadzę Cię przez cały proces zakupu – od pierwszego kontaktu aż po przekazanie kluczy.

Skontaktuj się, aby poznać szczegóły i dostępne układy mieszkań.

Julia Zaorska
tel. (+48) 516 975 745
O!DOM Nieruchomości 


Planujesz zakup z pomocą kredytu?
Nasz specjalista finansowy sprawdzi dostępne oferty i pomoże wybrać rozwiązanie najlepiej dopasowane do Twojej sytuacji i oczekiwań.

Nota prawna

Treść niniejszego ogłoszenia ma charakter wyłącznie informacyjny i nie stanowi oferty handlowej w rozumieniu przepisów Kodeksu Cywilnego.

Kalkulatory

Kalkulator kredytowy

Wysokość raty

PLN
%

Kalkulator kosztów

Taksa notarialna
(opłata notarialna)

Wniosek o wpis do KW

VAT od prowizji
agencji nieruchomości

VAT od taksy notarialnej
(opłaty notarialnej)

Prowizja agencji nieruchomości

Wypisy aktu notarialnego

Razem

Uwaga: mogą wystąpić dodatkowe opłaty za założenie księgi wieczystej oraz ustanowienie hipoteki.

PLN
PLN
PLN
PLN
PLN
%
PLN

Podobne oferty

Mieszkanie na sprzedaż

Bydgoszcz, Fordon

3 pokoje 60 m2 7 816,67 zł/m2

Mieszkanie na sprzedaż

Bydgoszcz, Fordon

3 pokoje 81 m2 7 777,78 zł/m2

Mieszkanie na sprzedaż

Bydgoszcz, Glinki

3 pokoje 54 m2 7 203,70 zł/m2

Mieszkanie na sprzedaż

Bydgoszcz, Górzyskowo

4 pokoje 72 m2 9 266,94 zł/m2

Doradca ds. nieruchomości

Proszę wprowadzić poprawne imię i nazwisko
Proszę wprowadzić poprawny numer telefonu
Proszę wprowadzić poprawny adres e-mail
Proszę zaznaczyć wymagane zgody
Rozwiąż równanie:
11 9
Niepoprawny wynik