Mieszkanie na sprzedaż Bydgoszcz

2 pokoje
35.33 m²
13 792,19 zł/m2
3 piętro
ODOM-MS-470
Oblicz ratę kredytu

487 278 zł

Mieszkanie na sprzedaż
Nowa oferta

Szczegóły oferty

Symbol oferty ODOM-MS-470
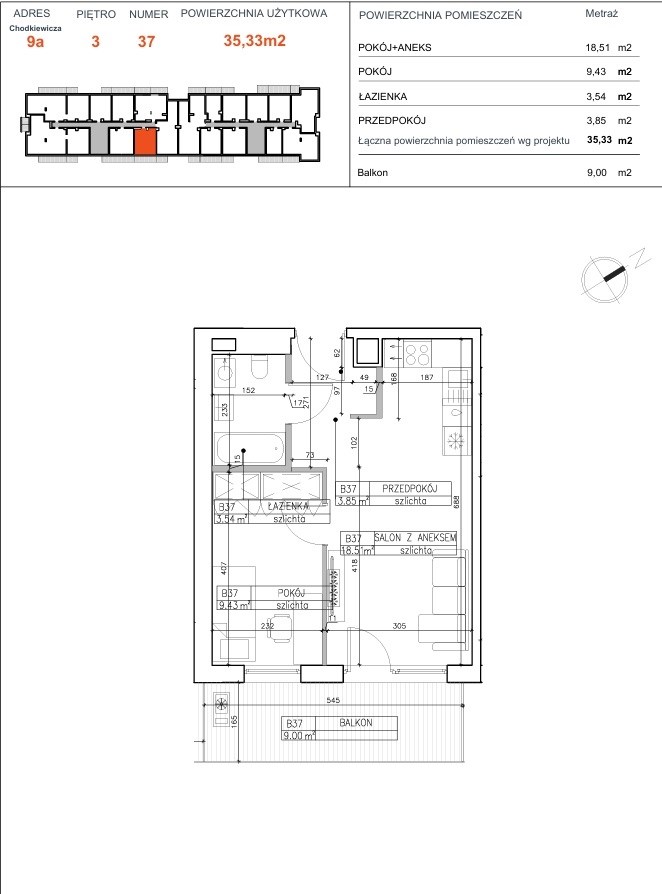
Powierzchnia 35,33 m²
Powierzchnia użytkowa [m2] 35,33 m²
Powierzchnia balkonów/tarasów 9,00 m²
Liczba pokoi 2
Rodzaj budynku apartamentowiec
Standard
Piętro 3
Liczba pięter w budynku 4
Stan lokalu deweloperski
Okna PCV
Balkon jest
Liczba balkonów 1
Rok budowy 2025
Plac zabaw tak
Ogrzewanie podłogowe
Winda tak
Liczba wind 1
Przystosowania dla niepełnosprawnych tak
Pomieszczenia
Rodzaj kuchni aneks kuchenny - połączony z salonem
Powierzchnia kuchni 18,51 m2
Liczba łazienek 1
Powierzchnia łazienki [m2] 3,54 m2
Liczba przedpokoi 1
Powierzchnia przedpokoi 3,85 m2
Julia Zaorska

Julia Zaorska

Doradca ds. nieruchomości

Napisz wiadomość 62 Ofert

Opis nieruchomości

Twój adres w rytmie symfonii – prestiż, harmonia, styl

Kameralne osiedle przy ul. Chodkiewicza 9 to wyjątkowa inwestycja, w ramach której powstało 211 starannie zaprojektowanych lokali mieszkalnych od kompaktowych mieszkań dla singli, po przestronne apartamenty dla rodzin. To miejsce, które łączy nowoczesną architekturę, wysoki standard wykonania i komfort codziennego życia.
Na mieszkańców czekają funkcjonalne układy pomieszczeń, przemyślane rozwiązania technologiczne oraz liczne udogodnienia, które podnoszą jakość życia i tworzą wyjątkową, przyjazną przestrzeń do zamieszkania.

Układ mieszkania

Powierzchnia użytkowa o metrażu 35,33  obejmuje:
-
Pokój z aneksem kuchennym
- Salon
- Łazienkę
- Balkon 9,00

Mieszkanie doskonale sprawdzi się dla singla, pary lub jako
bezpieczna inwestycja kapitału w nieruchomość pod wynajem.

Dodatkowo możesz dokupić: 

- Miejsce postojowe w hali garażowej – od 54 000 zł
- Miejsce postojowe na terenie zamkniętym – 29tys zł 
- Komórkę lokatorską – 5 500 zł/m² 

*** Kupujący nie płaci prowizji ani podatku PCC 2%.*** 

Na terenie inwestycji znajdziesz:

- miejsce do ładowania samochodów elektrycznych
- halę garażową i komórki lokatorskie
- szybką i cichobieżną windę
- monitoring i ogrodzony teren
- zagospodarowaną, zieloną przestrzeń wokół budynku
- wysoki standard części wspólnych

Lokalizacja, która sprzyja życiu 

Osiedle Symfonia powstaje w wyjątkowym miejscu – w samym sercu Bydgoszczy, w otoczeniu zieleni i miejskich udogodnień. W pobliżu znajdują się parki, sklepy, restauracje, szkoły i przedszkola, a także kampus Akademii Muzycznej, który nadaje okolicy niepowtarzalny, artystyczny klimat.

Dzięki doskonałej komunikacji z centrum miasta, do najważniejszych punktów Bydgoszczy dotrzesz w zaledwie kilka minut.
To idealne miejsce dla tych, którzy cenią sobie wygodę miejskiego życia, a jednocześnie pragną spokoju i harmonii w codziennym otoczeniu.

 

** Dostępna jest opcja wykończenia pod klucz, przy czym koszt ustalany jest indywidualnie i zależy od wybranych materiałów. **

 


Z przyjemnością przeprowadzę Cię przez cały proces zakupu – od pierwszego kontaktu aż po przekazanie kluczy.

Skontaktuj się, aby poznać szczegóły i dostępne układy mieszkań.

Nota prawna

Treść niniejszego ogłoszenia ma charakter wyłącznie informacyjny i nie stanowi oferty handlowej w rozumieniu przepisów Kodeksu Cywilnego.

Kalkulatory

Kalkulator kredytowy

Wysokość raty

PLN
%

Kalkulator kosztów

Taksa notarialna
(opłata notarialna)

Wniosek o wpis do KW

VAT od prowizji
agencji nieruchomości

VAT od taksy notarialnej
(opłaty notarialnej)

Prowizja agencji nieruchomości

Wypisy aktu notarialnego

Razem

Uwaga: mogą wystąpić dodatkowe opłaty za założenie księgi wieczystej oraz ustanowienie hipoteki.

PLN
PLN
PLN
PLN
PLN
%
PLN

Podobne oferty

Mieszkanie na sprzedaż

Bydgoszcz, Fordon

3 pokoje 60 m2 7 500,00 zł/m2

Mieszkanie na sprzedaż

Bydgoszcz, Fordon

3 pokoje 81 m2 7 777,78 zł/m2

Mieszkanie na sprzedaż

Bydgoszcz, Glinki

3 pokoje 54 m2 7 203,70 zł/m2

Mieszkanie na sprzedaż

Bydgoszcz, Kapuściska

3 pokoje 57 m2 7 891,04 zł/m2

Doradca ds. nieruchomości

Proszę wprowadzić poprawne imię i nazwisko
Proszę wprowadzić poprawny numer telefonu
Proszę wprowadzić poprawny adres e-mail
Proszę zaznaczyć wymagane zgody
Rozwiąż równanie:
12 2
Niepoprawny wynik