Mieszkanie na sprzedaż Bydgoszcz

2 pokoje
40.77 m²
11 400,00 zł/m2
3 piętro
ODOM-MS-286
Oblicz ratę kredytu

464 778 zł

Mieszkanie na sprzedaż
Nowa oferta

Szczegóły oferty

Symbol oferty ODOM-MS-286
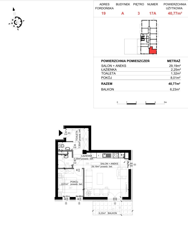
Powierzchnia 40,77 m²
Powierzchnia użytkowa [m2] 40,77 m²
Powierzchnia balkonów/tarasów 6,23 m²
Liczba pokoi 2
Liczba sypialni 2
Rodzaj budynku aparthotel
Standard
Piętro 3
Stan lokalu deweloperski
Okna PCV
Balkon jest
Liczba balkonów 1
Rok budowy 2025
Winda tak
Liczba wind 1
Usytuowanie narożne
Pomieszczenia
Powierzchnia pokoi 11,54-12,88 m2
Rodzaj kuchni aneks kuchenny - połączony z salonem
Powierzchnia kuchni 29,19 m2
Liczba łazienek 1
Powierzchnia łazienki [m2] 2,25 m2
Liczba WC 1
Powierzchnia WC 1,32 m2
Justyna Śliwińska

Justyna Śliwińska

Starszy specjalista ds. nieruchomości

Napisz wiadomość 47 Ofert

Opis nieruchomości

Osiedla Ceramika
To wyjątkowo kameralna inwestycja — tylko 39 mieszkań i lokale usługowe , już gotowe na nowych właścicieli. To idealne miejsce dla osób, które chcą połączyć wygodę miejskiego życia z otoczeniem natury. A kiedy przychodzi czas na odpoczynek, wystarczy kilka minut spaceru, by dotrzeć do urokliwego Balatonu - jednego z ulubionych miejsc rekreacyjnych bydgoszczan. Mieszkania na Osiedlu Ceramika zostały zaprojektowane z myślą o komforcie i funkcjonalności.

Przestronne wnętrza , duże trzyszybowe okna zapewniające świetne doświetlenie i ciszę, a także szeroki wybór metraży — od 30 aż do niemal 70 m² — pozwalają dopasować przestrzeń do indywidualnych potrzeb.
Oferujemy na sprzedaż mieszkanie o powierzchni 40,77 m2
Układ mieszkania:
-Przestronny salon z aneksem kuchennym- świetna baza do stworzenia komfortowej strefy dziennej.
-Ustawny pokój - idealny na sypialnię, pokój dziecka lub gabinet.
-Łazienka przygotowana do wykończenia i aranżacji według własnych pomysłów.
-Duży balkon 6,23 m²- doskonała przestrzeń na odpoczynek

Atuty nieruchomości:

Nowoczesne budownictwo i wysoki standard części wspólnych, duże okna zapewniające dużo naturalnego światła, funkcjonalny, dobrze przemyślany układ

Lokalizacja:
Bliskość terenów zielonych, Balatonu i terenów rekreacyjnych to ogromny plus dla rodzin - można aktywnie spędzać czas na zewnątrz.
Osiedle nadaje się zarówno dla osób, które cenią szybką komunikację i życie miejskie, jak i tych, którzy chcą mieć blisko natury. Duża dostępność usług: sklepy, szkoły, przedszkola, usługi - wszystko w niedalekiej odległości.
Osiedle Ceramika to połączenie miejskiego życia z naturą — teren rekreacyjny Balaton to duży plus dla tych, którzy chcą mieć
„miejski azyl”.

*** Kupujący nie płaci prowizji ani podatku PCC 2%.*** 
Z przyjemnością przeprowadzę Cię przez cały proces zakupu - od pierwszego kontaktu aż po przekazanie kluczy. Skontaktuj się, aby poznać szczegóły i dostępne układy mieszkań.

Nota prawna

Treść niniejszego ogłoszenia ma charakter wyłącznie informacyjny i nie stanowi oferty handlowej w rozumieniu przepisów Kodeksu Cywilnego.

Kalkulatory

Kalkulator kredytowy

Wysokość raty

PLN
%

Kalkulator kosztów

Taksa notarialna
(opłata notarialna)

Wniosek o wpis do KW

VAT od prowizji
agencji nieruchomości

VAT od taksy notarialnej
(opłaty notarialnej)

Prowizja agencji nieruchomości

Wypisy aktu notarialnego

Razem

Uwaga: mogą wystąpić dodatkowe opłaty za założenie księgi wieczystej oraz ustanowienie hipoteki.

PLN
PLN
PLN
PLN
PLN
%
PLN

Podobne oferty

Mieszkanie na sprzedaż

Bydgoszcz, Fordon

3 pokoje 60 m2 7 816,67 zł/m2

Mieszkanie na sprzedaż

Bydgoszcz, Glinki

3 pokoje 54 m2 7 203,70 zł/m2

Mieszkanie na sprzedaż

Bydgoszcz, Kapuściska

3 pokoje 57 m2 7 891,04 zł/m2

Mieszkanie na sprzedaż

Bydgoszcz, Szwederowo

2 pokoje 35 m2 10 200,00 zł/m2

Starszy specjalista ds. nieruchomości

Proszę wprowadzić poprawne imię i nazwisko
Proszę wprowadzić poprawny numer telefonu
Proszę wprowadzić poprawny adres e-mail
Proszę zaznaczyć wymagane zgody
Rozwiąż równanie:
23 6
Niepoprawny wynik