Mieszkanie na sprzedaż Bydgoszcz, Wzgórze Wolności

2 pokoje
35.00 m²
5 428,57 zł/m2
11 piętro
ODOM-MS-301
Oblicz ratę kredytu

190 000 zł

Mieszkanie na sprzedaż
Nowa oferta

Szczegóły oferty

Symbol oferty ODOM-MS-301
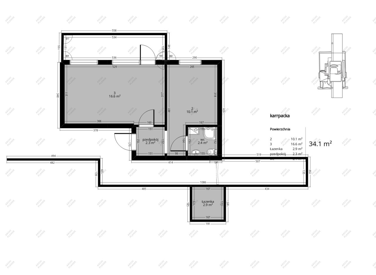
Powierzchnia 35,00 m²
Powierzchnia balkonów/tarasów 6,00 m²
Liczba pokoi 2
Rodzaj budynku wieżowiec
Technologia budowlana wielka płyta
Piętro 11
Liczba pięter w budynku 11
Stan lokalu do remontu
Balkon loggia
Rok budowy 1970
Widok panorama miasta
Dojazd ASFALTOWA
Umeblowanie częściowo umeblowane
Odl. do sklepu [m] 200 m
Winda tak
Liczba wind 1
Usytuowanie jednostronne
Pomieszczenia
Justyna Śliwińska

Justyna Śliwińska

Starszy specjalista ds. nieruchomości

Napisz wiadomość 48 Ofert

Opis nieruchomości


Zapraszamy do zapoznania się z ofertą mieszkania usytuowanego na 11. piętrze w pięknej lokalizacji na Wzgórzu Wolności.

Nieruchomość idealna dla inwestorów ,z możliwością dostosowania wnętrza do swoich potrzeb.
 

Najważniejsze informacje:

- Powierzchnia: 35 m²
Status: lokal użytkowy

- Piętro: 11

- Budynek: zadbany wieżowiec z windą

- Lokalizacja: świetnie skomunikowane osiedle, blisko centrum
W lokalu wydzielono oddzielne pomieszczenie sanitarne (WC), dostępne z korytarza

Opis lokalu:

Lokal jest jasny, funkcjonalny i posiada układ umożliwiający łatwą aranżację na biuro, gabinet, pracownię lub inną działalność usługową. Wysokie piętro gwarantuje prywatność oraz przyjemny widok na okolicę.
 

Atuty lokalizacji:

- blisko przystanków komunikacji miejskiej

- szybki dostęp do centrum Bydgoszczy

- pełna infrastruktura: sklepy, punkty usługowe, tereny zielone

- spokojna, zadbana okolica
 

Dlaczego warto?

To doskonała propozycja inwestycyjna – idealna pod wynajem lub prowadzenie działalności gospodarczej. Lokal oferuje duży potencjał aranżacyjny oraz znajduje się w jednej z najbardziej praktycznych lokalizacji w Bydgoszczy.

Załączone zdjęcia przestawiają wizualizację jak również stan faktyczny mieszkania.

 

Z przyjemnością pomogę Ci bezpiecznie przejść przez cały proces zakupu – od pierwszej rozmowy aż po przekazanie kluczy.


Zapraszam serdecznie na prezentację – to miejsce warto zobaczyć na żywo!

Treść niniejszego ogłoszenia ma charakter wyłącznie informacyjny i nie stanowi oferty handlowej w rozumieniu przepisów Kodeksu Cywilnego

Justyna Śliwińska 
tel. (+48) 786 425 444

Planujesz zakup z pomocą kredytu?
Nasz specjalista finansowy sprawdzi dostępne oferty i pomoże wybrać rozwiązanie najlepiej dopasowane do Twojej sytuacji i oczekiwań.

Nota prawna

Treść niniejszego ogłoszenia ma charakter wyłącznie informacyjny i nie stanowi oferty handlowej w rozumieniu przepisów Kodeksu Cywilnego.

Lokalizacja nieruchomości

Kalkulatory

Kalkulator kredytowy

Wysokość raty

PLN
%

Kalkulator kosztów

Podatek od czynności cywilno-prawnych

Taksa notarialna
(opłata notarialna)

Wniosek o wpis do KW

VAT od prowizji
agencji nieruchomości

VAT od taksy notarialnej
(opłaty notarialnej)

Prowizja agencji nieruchomości

Wypisy aktu notarialnego

Razem

Uwaga: mogą wystąpić dodatkowe opłaty za założenie księgi wieczystej oraz ustanowienie hipoteki.

PLN
PLN
PLN
PLN
PLN
PLN
%
PLN

Starszy specjalista ds. nieruchomości

Proszę wprowadzić poprawne imię i nazwisko
Proszę wprowadzić poprawny numer telefonu
Proszę wprowadzić poprawny adres e-mail
Proszę zaznaczyć wymagane zgody
Rozwiąż równanie:
11 6
Niepoprawny wynik